EMAIL
info@solarpermitservices.com
Call Today
(949) 872-8236
Find Us
Aliso Viejo, CA 92656
Toggle navigation
Home
Services
Our Services
PV Package Pricing
PROJECT FORM
About Us
PROJECT SAMPLES
Contact Us
Single Page
PROJECT SAMPLES
Home
PROJECT SAMPLES
Commercial Roof Mount
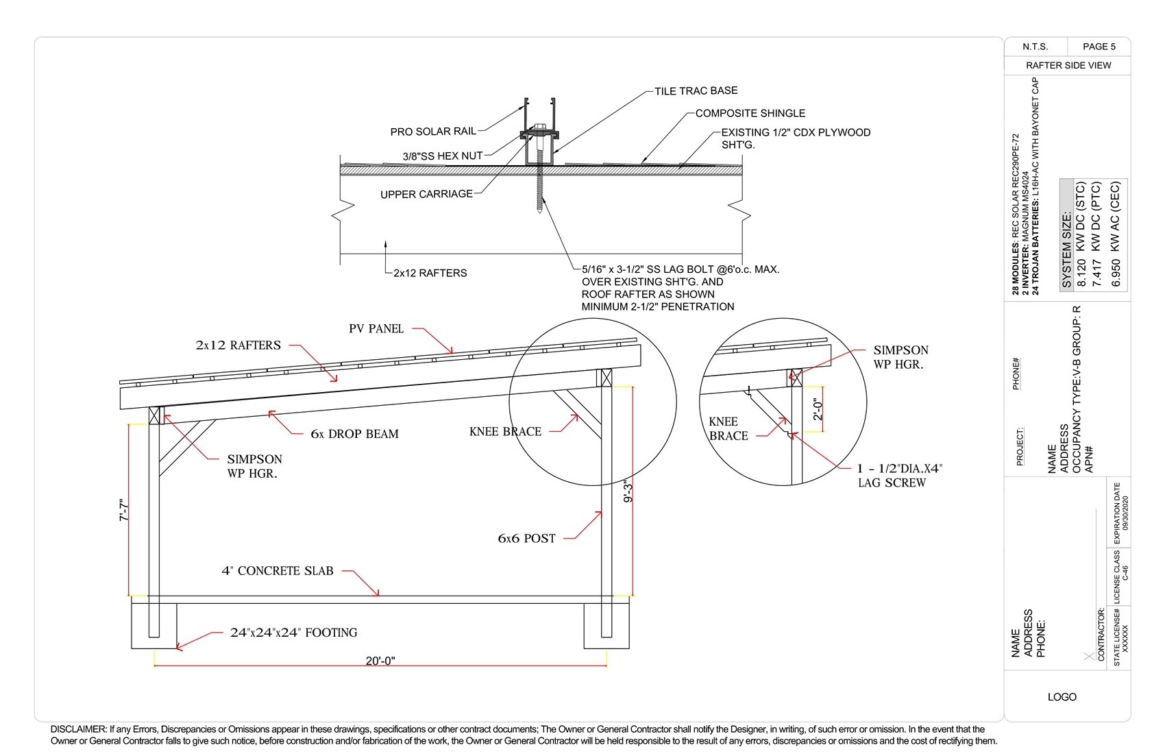
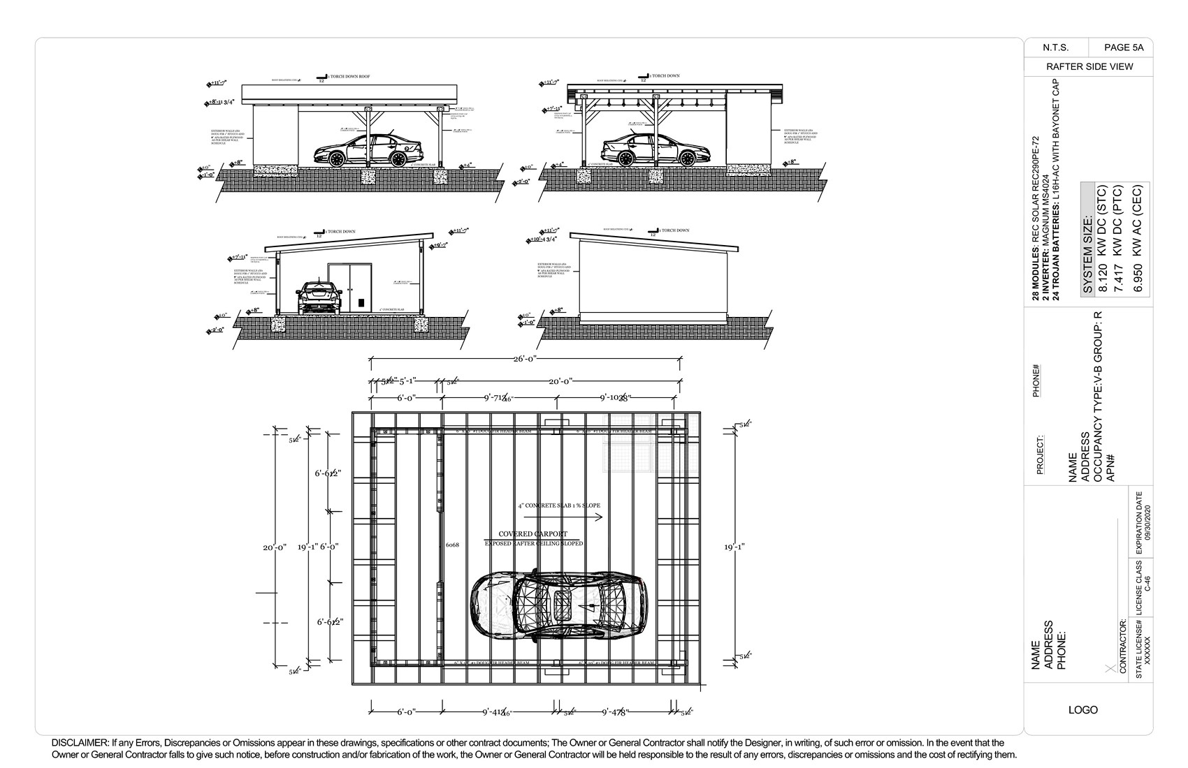
Residential Battery System
Commercial Ground Mount
Residential Ground Mount
Commercial Canopy
Residential Roof Mount
Residential Battery System
Call Us